986 Carl Sanders DriveAcworth, GA 30101
Due to the health concerns created by Coronavirus we are offering personal 1-1 online video walkthough tours where possible.




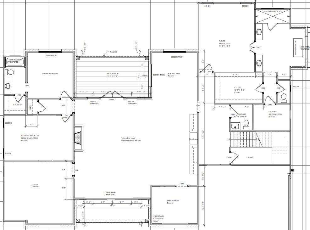
RANCH ON BASEMENT under Construction. Complete date Spring 2026. Welcome to 986 Carl Sanders- the entry leads you into a 12 foot ceiling main level starting with a stunning barrel vault foyer ceiling which opens to the kitchen and living space. With 10ft floor to ceiling windows in the rear and large stacking sliding doors it gives an abundance of natural light. Enjoy preparing your meals in the scullery- featuring a sink to keep meal time tidy. Open sliders to your back porch with vaulted 18 foot ceilings to enjoy your morning coffee. The kitchen range wall will be so uniqueIndescribable; with an arched design rarely seen. If you love to entertain, this is your home. Primary on Main with a luxurious bathroom shower and separate soaking tub. A home office in the front of the home, with privacy for any meetings. OPEN concept living area, with loads of natural light! Laundry and mudroom are perfectly placed close to the garage entry and connect to the master closet. Three additional bedrooms all with an ensuite. Partially finished FULL DAYLIGHT Basement with a second full primary suite and entertaining areas finished. Basement is stubbed and ready to be finished with one full bathroom and additional bedroom as well as 2 flex rooms and wine cellar. Unfinished basement will have necessary hvac capacity to extend into those rooms should it be finished. High end custom cabinetry, premium stone surface counter-tops, professional gas range and refrigerator accented with high end trim detail throughout the home. Top end tile work in all bathrooms and select 7 inch wide plank hardwood flooring throughout the main level. Oversized 3 car garage with room for a golf cart. This home will be all brick with hardie board and batten accents. Governors Towne Club...Acworth's Only Gated Golf Community is close to shopping, restaurants & hiking trails. The centerpiece of this country club community is a world class 18 hole golf course designed by two-time U.S. Open champion Curtis Strange. Membership at Governors Towne Club offers you a Championship 18 hole golf course, Elegant Clubhouse with three dining rooms, a men's only grille, a magnificent ballroom, executive boardroom and weekly member events with a full calendar of social events throughout the year. Membership also includes a Luxury Day Spa & State of the Art Fitness Center, as well as Tennis and Pool facilities complete with an Activity Center. Builder has included mandatory GTC Club Athletic Initiation! Pictures are of other T.A. Mathieu homes. Exemplary attention to detail in every aspect of this build! Current pictures from other TA Mathieu custom homes.
| 3 weeks ago | Listing first seen on site | |
| 3 weeks ago | Listing updated with changes from the MLS® |
Listings identified with the FMLS IDX logo come from FMLS and are held by brokerage firms other than the owner of this website and the listing brokerage is identified in any listing details. Information is deemed reliable but is not guaranteed. If you believe any FMLS listing contains material that infringes your copyrighted work, please click here to review our DMCA policy and learn how to submit a takedown request.
© 2017-2026 First Multiple Listing Service, Inc.

Did you know? You can invite friends and family to your search. They can join your search, rate and discuss listings with you.