230 Winterberry WayRoswell, GA 30075
Due to the health concerns created by Coronavirus we are offering personal 1-1 online video walkthough tours where possible.




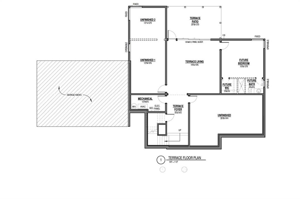
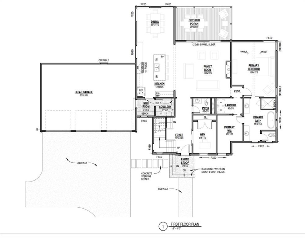
230 Winterberry Wy is on a one acre homesite in the Aster community of Roswell, GA. This 3,919 square foot home offers 4 bedrooms and 4.5 bathrooms, blending a modern style in a natural setting. There is a duel covered rear porch with triple slider doors on both levels. The primary suite is conveniently located on the main level, providing a private retreat with all the comforts you desire. The home includes a dedicated work-from-home space downstairs, perfect for maintaining productivity in a quiet, comfortable environment. Additionally, two finished living spaces in the terrace level offer ample room for relaxation and entertainment. As a net-zero energy home, this residence will have solar panels, reflecting a commitment to sustainability and energy efficiency. The overall design is described as modern moody, characterized by simplicity, sophistication, and a focus on functionality. Natural materials like light wood and textures are complemented by dark modern accents, creating a balanced and inviting atmosphere. The interior of the home will be curated by our designer with the homeowner's specific tastes and desires. This home is a Net Zero Energy Home featuring Solar Panels, Spray Foam Insulation is in the Attic envelope of the entire home and exterior walls, 18 Seer HVAC and Tankless Water Heater. Aster features an amenity area and nature trails throughout the community. Roswell is Named One of the Top Three Cities in the Nation to Raise Your Family, released by Frommer's.
| 5 months ago | Price changed to $2,043,920 | |
| 5 months ago | Listing updated with changes from the MLS® | |
| 8 months ago | Status changed to Pending | |
| 8 months ago | Listing first seen on site |
Listings identified with the FMLS IDX logo come from FMLS and are held by brokerage firms other than the owner of this website and the listing brokerage is identified in any listing details. Information is deemed reliable but is not guaranteed. If you believe any FMLS listing contains material that infringes your copyrighted work, please click here to review our DMCA policy and learn how to submit a takedown request.
© 2017-2026 First Multiple Listing Service, Inc.

Did you know? You can invite friends and family to your search. They can join your search, rate and discuss listings with you.